ARAMA

Hasanoğlan Fatih Mahallesi 96207 Sayılı Parselasyo...

Geri

Hasanoğlan Fatih Mahallesi 96207 Sayılı Parselasyon Planı Hk

27 Ekim 2025

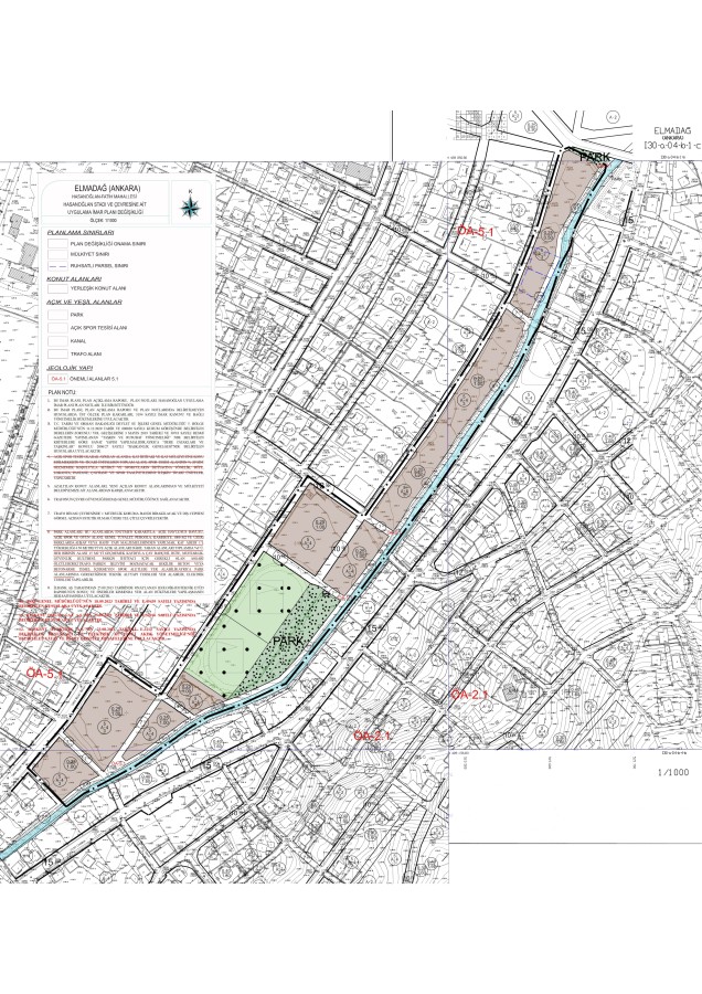
Hasanoğlan-Fatih Mahallesi sınırları içerisinde bulunan “Hasanoğlan Stadı ve çevresine ilişkin
1/1000 ölçekli Uygulama İmar Planı değişikliği Belediyemiz Meclisinin 01.11.2024 tarihli ve 223 sayılı
kararı ile uygun görülmüş, Ankara Büyükşehir Belediye Meclisinin 11.03.2025 tarihli ve 374 sayılı kararı
ile onaylanmıştır.
Plan değişikliği kapsamında 3194 sayılı İmar Kanunu’nun 18’inci maddesince hazırlanan 96207
sayılı parselasyon planı 3194 sayılı İmar Kanunu’nun 19'uncu maddesince Belediyemiz Encümeni'nin
14.08.2025 tarihli ve 194 sayılı kararı ile uygun görülerek Ankara Büyükşehir Belediye Encümeni'nin
09.10.2025 tarihli ve 2584 sayılı kararı ile onaylanmıştır.
Bu bağlamda onaylanan 96207 sayılı parselasyon planının 3194 sayılı İmar Kanununun 19'uncu
maddesi gereği belediyemiz panosu ve internet sitesinde 1 ay müddetle askıya çıkartılmıştır.

DİĞER İLANLAR